Property Listing

English

Newly Constructed, Three-story Detached House Nestled in the Heart of Nishi-Azabu.

Discover refined Tokyo living in this newly built freehold, detached house in Nishi‑Azabu, a 5‑minute walk to Roppongi Hills. Designed for international professionals, families or multigenerational households, the home spans three floors plus a private rooftop terrace with skyline views.

The impressive second floor features a seamless living and dining area and features 3.2‑meter ceilings commanding a sense of space, ideal for entertaining. The first floor offers a flexible self-contained multi‑purpose suite with a mini‑kitchen and study with ensuite – perfect as a home office, guest or grandparent suite, or for live‑in help. Contemporary finishes, clever storage and thoughtful circulation create comfortable, low‑maintenance city living. 

A rare freehold opportunity in one of Tokyo’s most sought‑after cultural and culinary districts, close to Roppongi Hills and international amenities. Move‑in ready with large private car space, rooftop terrace, and immediate access to the city’s best. 

Amenities

Master Bedroom

Master Bedroom

Serene sleeping quarters with warm ambient lighting and floor-to-ceiling drapery.

Living Room

Living Room

Sophisticated lounge area highlighted by a statement geometric ceiling light

Dining Area

Dining Area

Elegant open-plan dining space

Exterior Facade

Exterior Facade

Striking modern architecture with a dark, textured finish and integrated private parking for large car / SUV

Master Vanity

Master Vanity

Sleek, wide-profile bathroom vanity with integrated lighting and minimalist finishes.

Designer Kitchen

Designer Kitchen

Gourmet kitchen featuring a stainless steel island, integrated appliances, and clean white accents.

Private Balcony

Private Balcony

Spacious outdoor terrace featuring panoramic neighborhood views.

Luxury Bath

Luxury Bath

Contemporary wet room featuring a deep soaking tub and premium stone-textured tiling.

Featured Listing

A Contemporary Masterpiece in Nishiazabu

Perfectly positioned just a 6-minute walk from Roppongi Station, this newly completed (November 2025) residence redefines the “Urban Villa.”

  • Architectural Volume: The main living area boasts an impressive 3.2-meter ceiling height, creating a sense of grandeur rarely seen in Tokyo’s central wards.
  • Multigenerational Versatility: The ground floor features a self-contained suite with its own mini-kitchen and study – perfect for guests, a home office, or live-in help.
  • The Rooftop Sanctuary: A private outdoor escape with striking views of the Roppongi Hills skyline, ideal for hosting.
  • Convenience: Includes a private parking space specifically sized for a large SUV, a rare luxury in such a central location.

Investment Summary

  • Price: JPY 650,000,000
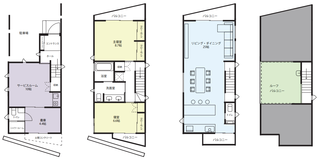
  • Size: 124.39 sqm Floor Area | Rooftop Balcony: 13.24 sqm | 79.02 sqm Land
  • Key Features: New construction (Nov 2025), 3.2m ceilings, SUV parking, 5-minute walk to Roppongi Hills.

 

Location

Nishiazabu 1-chome, Minato-ku, Tokyo

Access

5-minute walk to Roppongi Hills. Rare location for a new-build detached house. Located near numerous restaurants and dining options.

Excellent Transport Links

2 stations and 3 lines accessible within walking distance. Roppongi Station: 6-min walk (Hibiya & Oedo Lines). Nogizaka Station: 7-min walk (Chiyoda Line).]

Key Details

2 Bedrooms
Multi-Purpose Room
Study with Ensuite
3 Toilets
2 Bathrooms
Rooftop Terrace
Car Parking Space

Total Floor Area

124.39 sqm
Rooftop Balcony: 13.24 sqm

Structure

3 storey wooden structure with alloy-plated steel sheet roofing

Year of completion

November 2025 (New construction)

Floorplan

Floorplan

2 2 3 124.39 ㎡